30634 Grass River RoadWaller, TX 77484
Due to the health concerns created by Coronavirus we are offering personal 1-1 online video walkthough tours where possible.




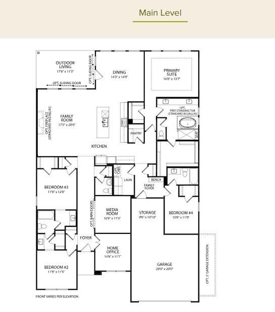
MLS# 16452479 - Built by Drees Custom Homes - April 2026 Completion! ~ Step into the Preswick, a thoughtfully designed home featuring 4 bedrooms, 4.5 baths, and a versatile layout that adapts to your lifestyle. From the welcoming foyer to the expansive family room and outdoor living space, every detail is crafted for comfort and convenience. A dedicated home office ensures productivity, while the media room offers the perfect spot for entertainment. The gourmet kitchen flows seamlessly into the dining and family areas, creating an inviting hub for gatherings. Retreat to the luxurious primary suite with spa-inspired bath and Yours and Mine walk-in closets for ultimate relaxation. With private en suites for secondary bedrooms, the Preswick delivers privacy and elegance for every member of the household. Perfect for families who value both functionality and luxury, the Preswick offers spaces to work, play, and unwind - all under one roof. Make this dream house yours today!
| 2 hours ago | Listing updated with changes from the MLS® | |
| 2 hours ago | Listing first seen on site |
IDX information is provided exclusively for consumers’ personal, non-commercial use. It may not be used for any purpose other than to identify prospective properties consumers may be interested in purchasing. This data is deemed reliable but is not guaranteed accurate by the MLS.
Data provided by HAR.com © 2026. All information provided should be independently verified.


Did you know? You can invite friends and family to your search. They can join your search, rate and discuss listings with you.